149 Coppermine Creek Road, Langshaw, QLD, 4570
Offers Over $1,500,000
- 3
- 1
- 3
- 401,400m2
Set in the tightly held Mary Valley district, this outstanding 40.14ha (99.9-acre) property presents a rare opportunity to secure a high-performing grazing and breeding operation with exceptional water security, quality infrastructure, and a comfortable home — all just 16km from Gympie. Private, productive, and well-improved, this is a property that truly delivers on both lifestyle and income potential.
Property Overview
• Single title holding in a quiet no-through road location
• Fully pasture-improved and highly productive farm
• Easy access to Gympie
Land & Carrying Capacity
• Carrying capacity of 35+ breeders plus progeny to 9 months, or year-round store fattening
• Rich, warm scrub soils
• Majority vegetation map white and clear
• Approx. 15% lightly timbered slopes on the eastern boundary
• Scenic creek, valley, and district views
Paddocks, Pastures & Fencing
• 4 main paddocks plus 4 smaller paddocks
• 2 laneways for efficient stock handling
• Improved pastures including Pangola, Creeping Bluegrass, Panic, Rhodes, Setaria, Kikuyu & legumes
• Stockproof fencing in excellent condition (approx. 60% new, 40% near new)
• Split timber, barbed wire, electric standoffs & steel gates
Water Security
• Permanent spring-fed creek frontage
• 42m equipped bore with electric submersible pump
• 10,000-gallon water storage tanks
• Gravity-fed troughs throughout the property
• Additional water pumped from the creek
Infrastructure
• 14m x 7.7m powered Colorbond shed with 3 roller doors
• Steel stockyards with crush and loading ramp
• Excellent entry road and internal access
Home & Improvements
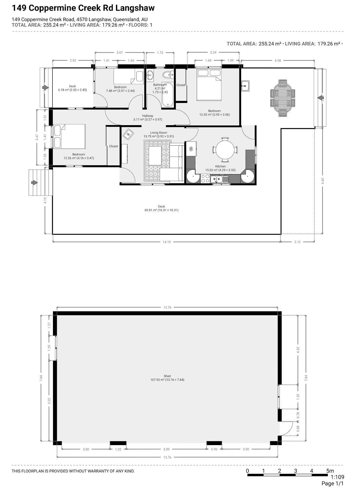
• Comfortable 3-bedroom residence with sweeping creek and valley views
• Modern kitchen, fireplace & air conditioning
• Large entertaining deck
• 13kW solar system with 10kW inverter (as new)
• 10,000-gallon rainwater tank
• Extensive gardens, greenhouses & fruit trees
• Bore water to header tank for gardens
• Chook house
Additional Features
• Very private setting on a no-through road
• Views toward Gympie from the eastern boundary
• Potential for farm stay or camping income (STCA) – creek or incredible views
• Gympie Regional Council local government area
Properties of this calibre in the Mary Valley are increasingly rare. With permanent water, excellent soils, strong carrying capacity, quality improvements, and genuine lifestyle appeal, 149 Coppermine Creek Road represents an outstanding opportunity for owner-occupiers, producers, or those seeking a high-quality rural investment close to town.
No inspections are currently scheduled. Contact the agent to arrange an appointment.
Make An AppointmentOur friendly team are available to assist with any of your property enquiries. So go ahead, reach out.
Have any questions? I would love to hear from you.
@realty © 2026. All rights reserved.